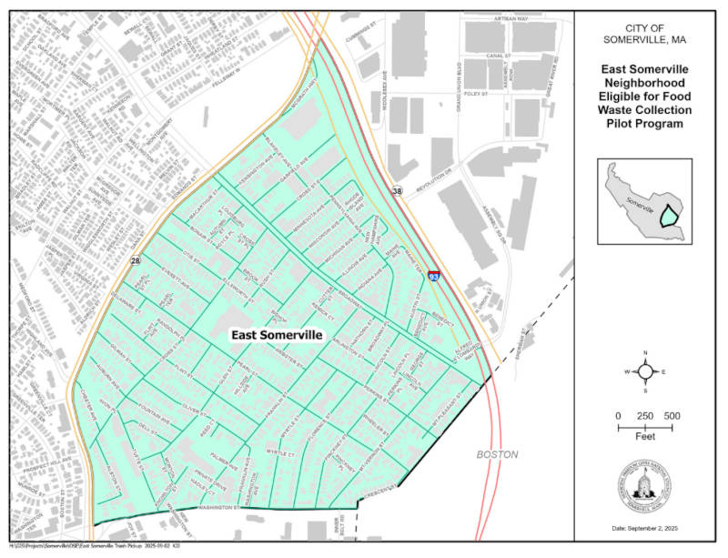
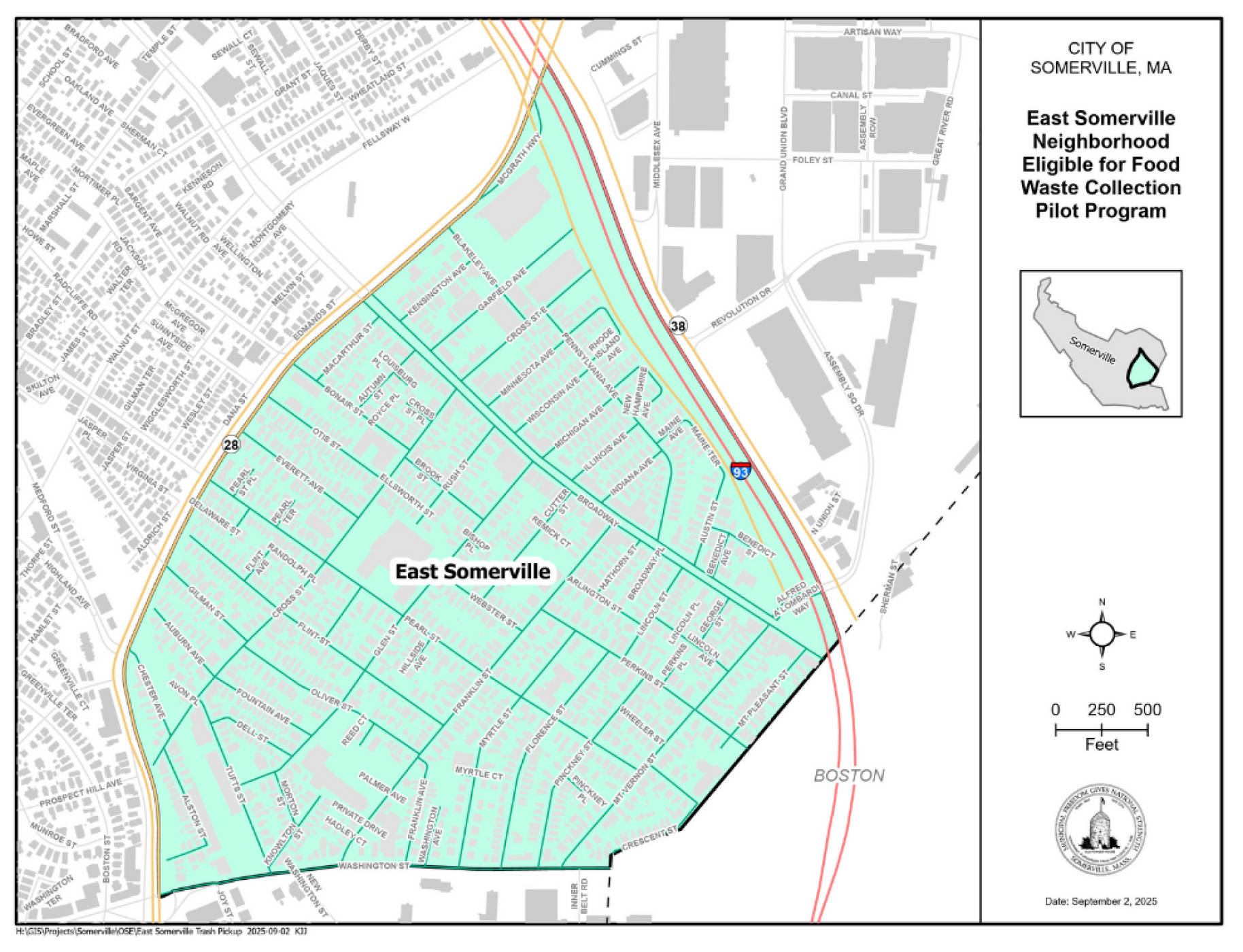
East Somerville Pilot Program Area
Check if your address qualifies for the no-cost pilot program
For detailed eligibility information, visit somervillema.gov/foodwaste
Why Compost in Somerville?
In Somerville's Zero Waste Plan and Climate Forward 2024, the City of Somerville set waste diversion goals to reduce the amount of waste generated in the city 30% by 2030 and 90% by 2050. In Massachusetts, plant and animal waste and compostable paper account for approximately 30% of municipal solid waste, so municipal composting is a key action toward these goals.
Reduce Carbon Emissions
According to the City of Somerville's Consumption-Based Emissions Inventory, food, including food waste, is the single largest source of resident carbon emissions within Somerville's borders, outpacing both transportation and housing-related activities like heating and residential electricity use. Avoiding food waste and only buying as much food as households need is one of the easiest and most cost-effective ways to avoid food emissions.
Divert 1 Ton per Year
Every 3 households composting for a year diverts roughly 1 ton of food waste from incinerators and landfills, reducing climate pollution and improving air quality.
Enrich Local Soils
Finished compost enriches local soils, supporting gardens and green spaces.
Keep Bins Clean & Rodent-Free
By composting, you remove food scraps from your trash, keeping trash bins clean, odor-free, and less attractive to rodents.
Build a More Sustainable Somerville
Together, we're building a more sustainable Somerville — one banana peel at a time.
Frequently Asked Questions
Language Access Assistance
If you need assistance translating or understanding this information, please call 311 (617-666-3311) or contact us at languageaccess@somervillema.gov. The City of Somerville can provide you with an interpreter for free.
Español: Si necesita ayuda para traducir o comprender esta información, llame al 311 (617-666-3311) o contáctenos a través de languageaccess@somervillema.gov. La ciudad de Somerville puede proporcionarle un intérprete de forma gratuita.
Português: Caso você precise de assistência para traduzir ou entender o conteúdo desta informação, por favor, ligue para 311 (617-666-3311) ou entre em contato conosco por languageaccess@somervillema.gov. A Prefeitura de Somerville oferece serviço de interpretação gratuitamente.
Kreyòl Ayisyen: Si ou bezwen èd pou tradwi oswa konprann enfòmasyon sa yo, tanpri rele 311 (617-666-3311) oswa kontakte nou nan languageaccess@somervillema.gov. Vil Somerville ka ba ou yon entèprèt gratis.
नेपाली: यदि तपाँईलाई यो जानकारी अनुवाद गर्न वा बुझ्न सहयोग चाहिन्छ भने कृपया ३११ (६१७-६६६-३३११) ३११ (६१७-६६६-३३११) मा फोन गर्नुहोस् वा हामीलाई languageaccess@somervillema.gov. मा सम्पर्क गर्नुहोस्। समरभिल सिटिले तपाँईलाई नि:शुल्क अनुवादक सेवा उपलब्ध गराउन सक्छ।
繁體中文, 中文:如果您需要翻譯或協助理解此資訊,請致電 311 (617-666-3311) 或發送電郵至 languageaccess@somervillema.gov。薩默維爾市可以免費為您提供口譯服務。
简体中文, 中文:如果您需要翻译或协助理解此信息,请致电 311 (617-666-3311) 或发送电邮至 languageaccess@somervillema.gov。萨默维尔市可以免费为您提供口译服务。





